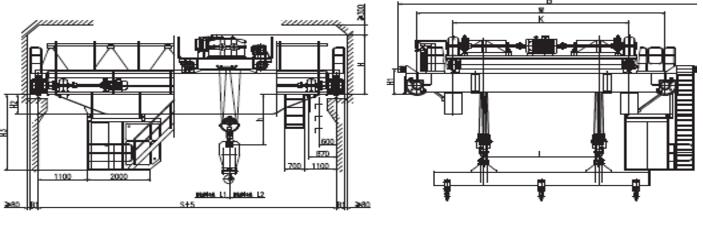
挂梁桥式起重机
1、 本起重机带有可拆卸的电磁盘,特别适用于搬运具有导磁性的黑色金属制品与材料,如钢锭、型钢、生铁块等。主要用于钢铁企业轧线、成品库,船厂钢料堆场、下料车间等。 2、 本起重机起重量包含电磁铁自重,起重机总重不包含电磁铁自重。 3、 结构简单,受力均衡,拆卸方便。 4、 采用单电机带动单卷筒或双卷筒结构形式,保证了起吊物的同步性。 5、 挂梁金属结构采用钢板焊接的箱形梁型式,挂梁上电磁吸盘均可拆卸,维修方便。 6、 超载限限制器采用双传感器双通道分别输入,对单个吊点及二起升机构的合力分别设定控制点,使起重机的使用更方便、更安全。 二、产品简图及技术规格(32t、40t)



|